

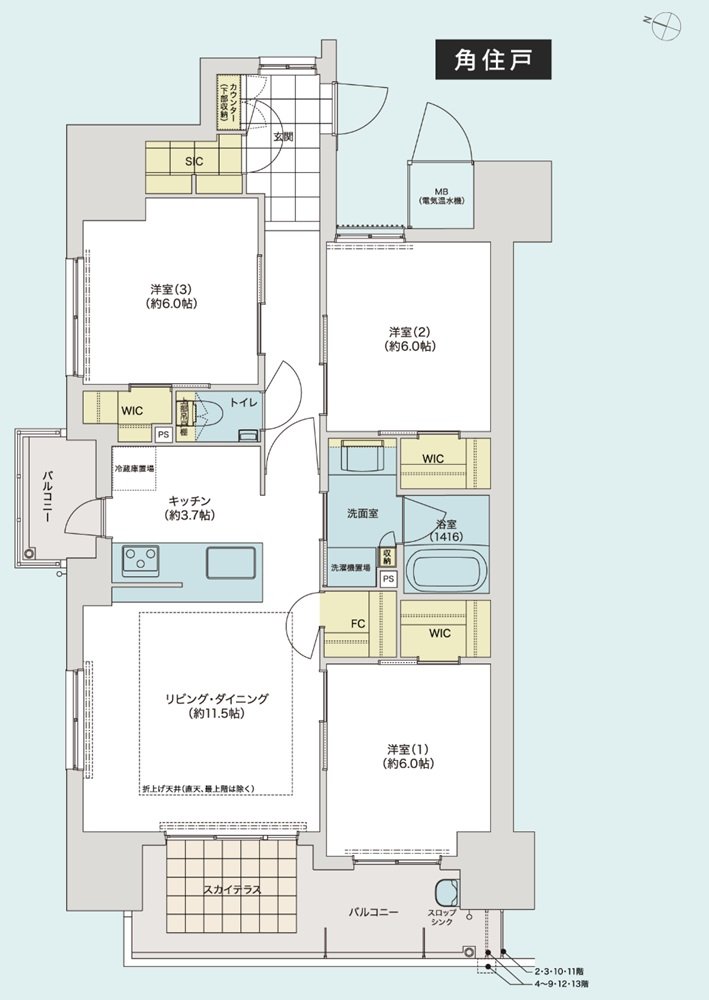
| タイプ |
N78-A TYPE |
間取り |
3LDK+3WIC+FC+SIC |
|---|---|---|---|
| 専有面積 |
78.58 ㎡ |
バルコニー面積 |
- |
| 価格 |
4090万円 |
||
| 所在地 |
徳島県徳島市中吉野町3丁目7-1 |
||
| 交通 |
バス利用:バス停「中吉野町」 停歩2分(徳島バス) |
||
| 備考 |
バルコニー面積:13.57㎡・13.96㎡ |
||