アットホーム 新築マンション

印刷する

このウィンドウを閉じる

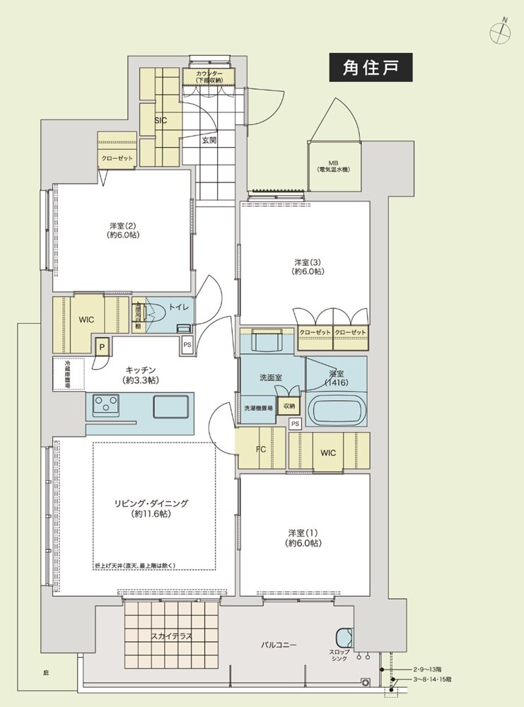
ロイヤルガーデン中吉野ザ・グラン S81-D TYPE

ロイヤルガーデン中吉野ザ・グラン 間取り S81-D TYPE
タイプ

S81-D TYPE

間取り

3LDK+2WIC+FC+SIC+P

専有面積

81 ㎡

バルコニー面積

-

価格

4290万円

所在地

徳島県徳島市中吉野町3丁目7-1

交通

バス利用:バス停「中吉野町」 停歩2分(徳島バス)

備考

バルコニー面積:13.64㎡・14.13㎡
※バルコニー面積にスカイテラス面積含む

  • 玄関からリビングが見えない間取り
  • ウォークインクローゼット
  • シューズインクローゼット
  • スロップシンク
  • テラス
  • 南向き
  • フラットフロア

印刷する

このウィンドウを閉じる

アットホーム Copyright(c) At Home Co.,Ltd. このサイトに掲載している情報の無断転載を禁止します。著作権はアットホーム(株)またはその情報提供者に帰属します。