
タイプ |
Eタイプ |
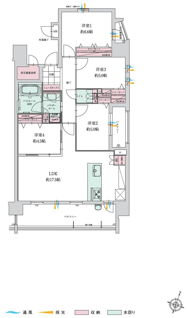
間取り |
4LDK+防災備蓄倉庫 |
---|---|---|---|
専有面積 |
85.32 ㎡ |
バルコニー面積 |
16.23 ㎡ |
所在地 |
福岡県福岡市西区姪浜駅南2丁目250番 |
||
交通 |
地下鉄空港線「姪浜」駅 徒歩10分 |
||
備考 |
室外機置場面積:1.73㎡ |