

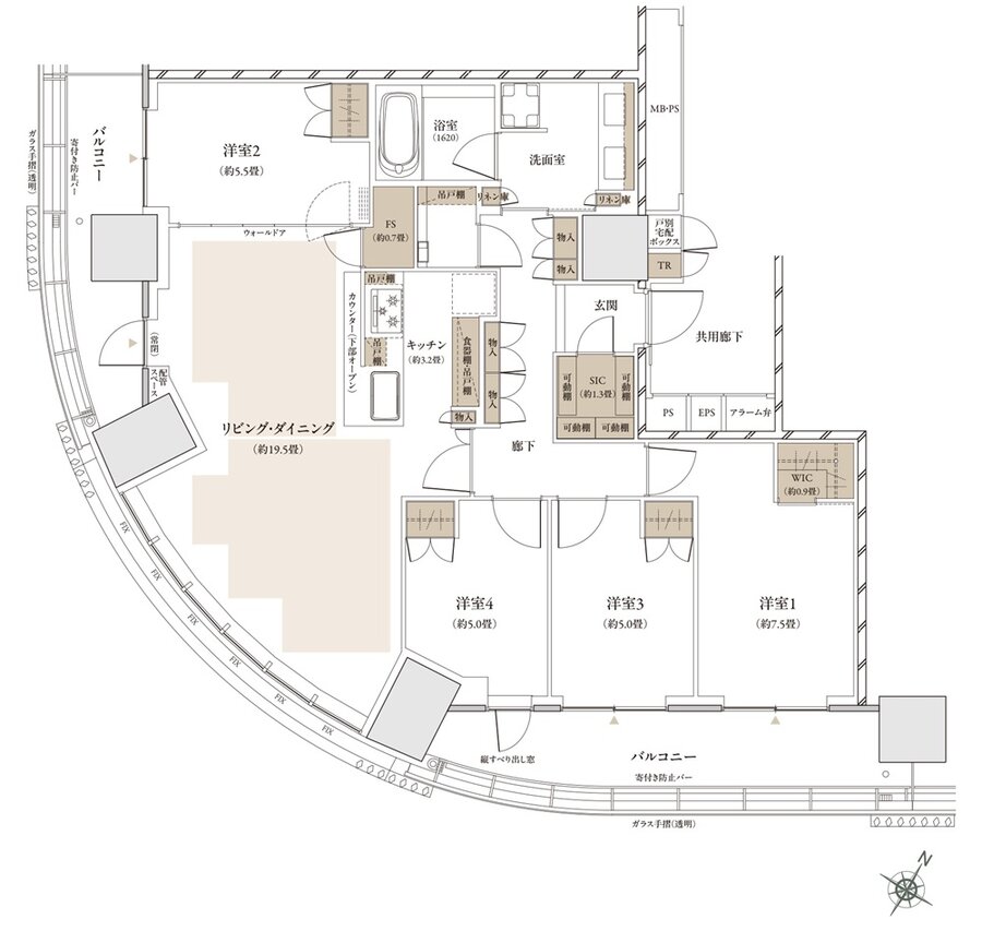
| タイプ |
S-104A TYPE |
間取り |
4LDK+WIC+SIC+FS+TR |
|---|---|---|---|
| 専有面積 |
104.09 ㎡ |
バルコニー面積 |
23.56 ㎡ |
| 所在地 |
神奈川県川崎市中原区小杉町1丁目390番1の一部(地番)[サウス/ノース] |
||
| 交通 |
JR南武線「武蔵小杉」駅 徒歩3分[サウス]※北口より、徒歩4分[ノース]※北口より |
||
| 備考 |
※専有面積はトランクルーム面積0.32㎡(約0.09坪) ・戸別宅配ボックス面積0.42㎡(約0.12坪)含む |
||