
タイプ |
D9 type |
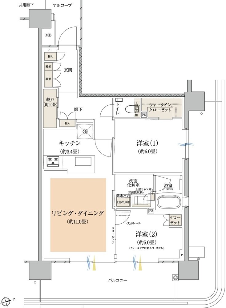
間取り |
2LDK+N+WIC |
---|---|---|---|
専有面積 |
63.12 ㎡ |
バルコニー面積 |
- |
所在地 |
埼玉県所沢市北秋津575番の一部外(底地地番) |
||
交通 |
西武池袋線「所沢」駅 徒歩10分(パークエントランスより) |
||
備考 |
バルコニー面積:32.15㎡(3~5階) |