アットホーム 新築マンション

印刷する

このウィンドウを閉じる

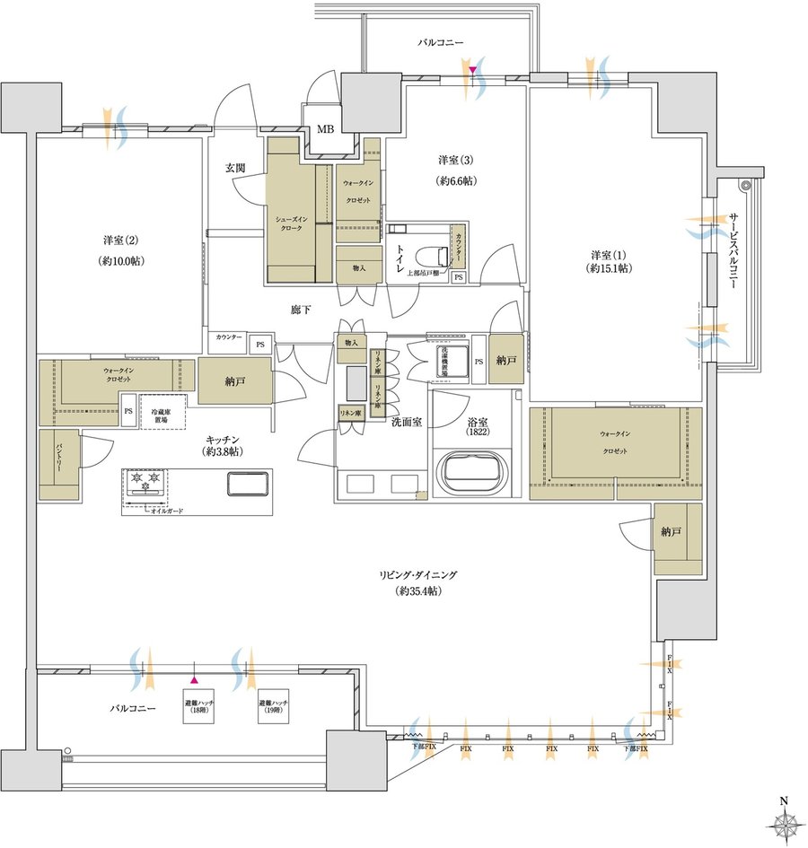
MATSUE THE TOWER I type

MATSUE THE TOWER 間取り I type
タイプ

I type

間取り

3LDK+3WIC+SIC+3N

専有面積

165.43 ㎡

バルコニー面積

20.27 ㎡

所在地

島根県松江市殿町105-1 (地番)

交通

一畑電車北松江線「松江しんじ湖温泉」駅 徒歩14分
JR山陰本線「松江」駅 徒歩23分
バス停「県民会館前」 停歩3分(一畑バス(松江駅・メッセ方面))

備考

サービスバルコニー面積:3.58㎡

  • 玄関からリビングが見えない間取り
  • 広いリビング
  • ウォークインクローゼット
  • シューズインクローゼット
  • 3面バルコニー
  • 南向き

印刷する

このウィンドウを閉じる

アットホーム Copyright(c) At Home Co.,Ltd. このサイトに掲載している情報の無断転載を禁止します。著作権はアットホーム(株)またはその情報提供者に帰属します。