

| タイプ |
B18r TYPE |
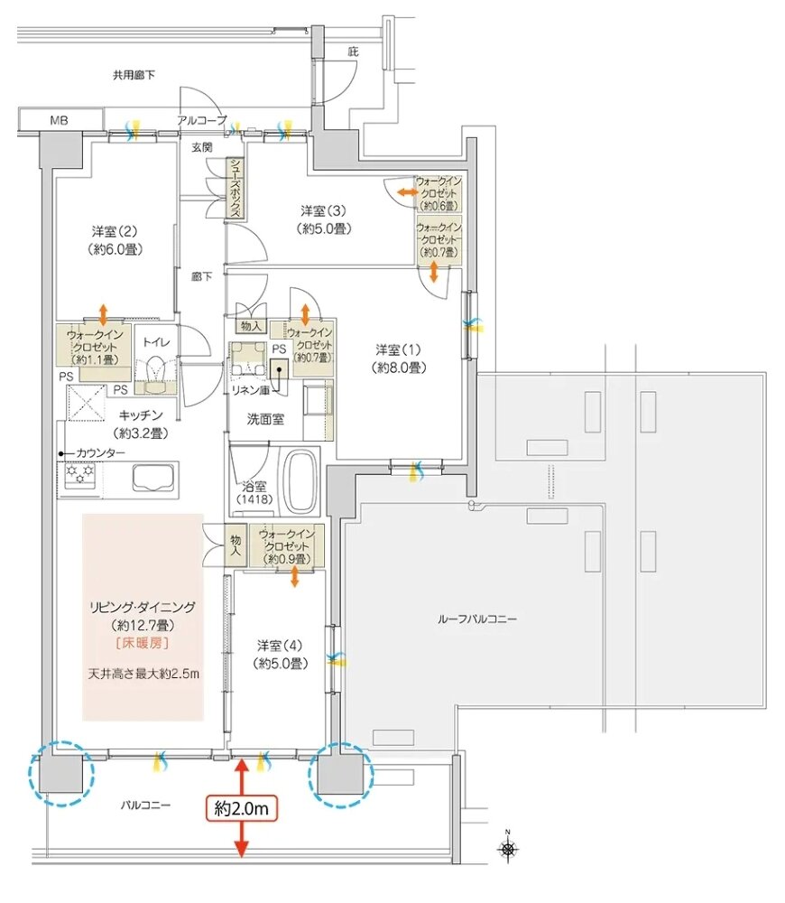
間取り |
4LDK+5WIC |
|---|---|---|---|
| 専有面積 |
86.59 ㎡ |
バルコニー面積 |
16.20 ㎡ |
| 所在地 |
京都府京都市右京区太秦荒木町8番 |
||
| 交通 |
地下鉄東西線「太秦天神川」駅 徒歩11分 |
||
| 備考 |
ルーフバルコニー面積:53.39㎡ |
||