

| タイプ |
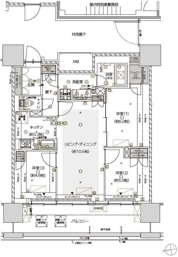
J1タイプ |
間取り |
3LDK+WIC |
|---|---|---|---|
| 専有面積 |
67.98 ㎡ |
バルコニー面積 |
- |
| 所在地 |
宮城県仙台市宮城野区榴岡5丁目6-1(地番) |
||
| 交通 |
JR仙石線「仙台」駅 徒歩10分(出入口2) |
||
| 備考 |
バルコニー面積:14.94㎡(2階)、15.11㎡(3~5階)、15.09㎡(6~21階) |
||