

| タイプ |
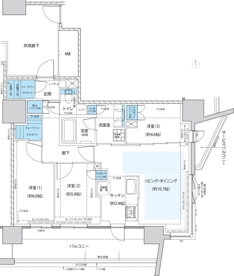
Dタイプ |
間取り |
3LDK+WIC+SIC |
|---|---|---|---|
| 専有面積 |
71.08 ㎡ |
バルコニー面積 |
14.34 ㎡ |
| 所在地 |
宮城県仙台市宮城野区榴岡5丁目6-1(地番) |
||
| 交通 |
JR仙石線「仙台」駅 徒歩10分(出入口2) |
||
| 備考 |
サービスバルコニー面積:2.77㎡ |
||