
タイプ |
F TYPE |
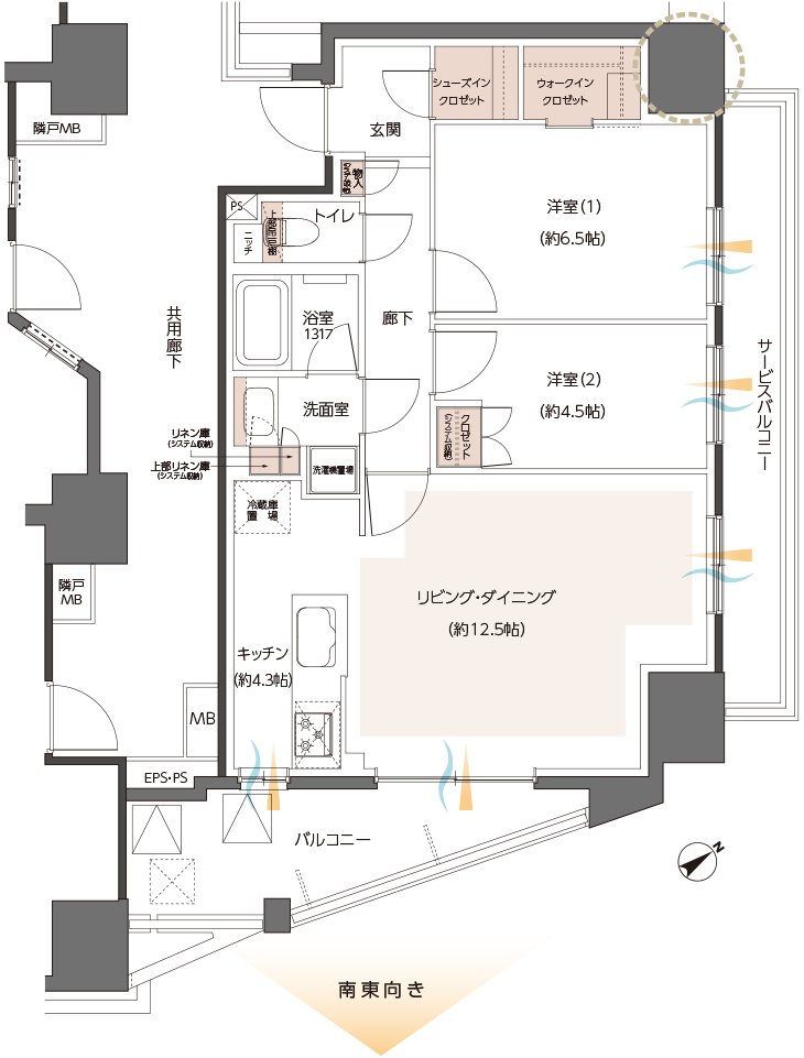
間取り |
2LDK+WIC+SIC |
---|---|---|---|
専有面積 |
64.79 ㎡ |
バルコニー面積 |
9.17 ㎡ |
所在地 |
埼玉県川口市元郷1丁目1827番1他14筆(地番) |
||
交通 |
埼玉高速鉄道「川口元郷」駅 徒歩1分(出入口2) |
||
備考 |
サービスバルコニー面積:7.99㎡ |