

| タイプ |
A type Menu 1 |
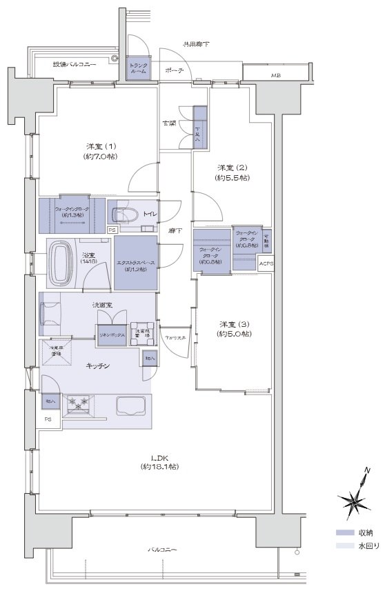
間取り |
3LDK+3WIC+ES |
|---|---|---|---|
| 専有面積 |
84.09 ㎡ |
バルコニー面積 |
11.49 ㎡ |
| 所在地 |
静岡県磐田市新貝1丁目8-1 |
||
| 交通 |
東海道本線「御厨」駅 徒歩2分 |
||
| 備考 |
※専有面積に、トランクルーム面積含む |
||