
タイプ |
Fg TYPE |
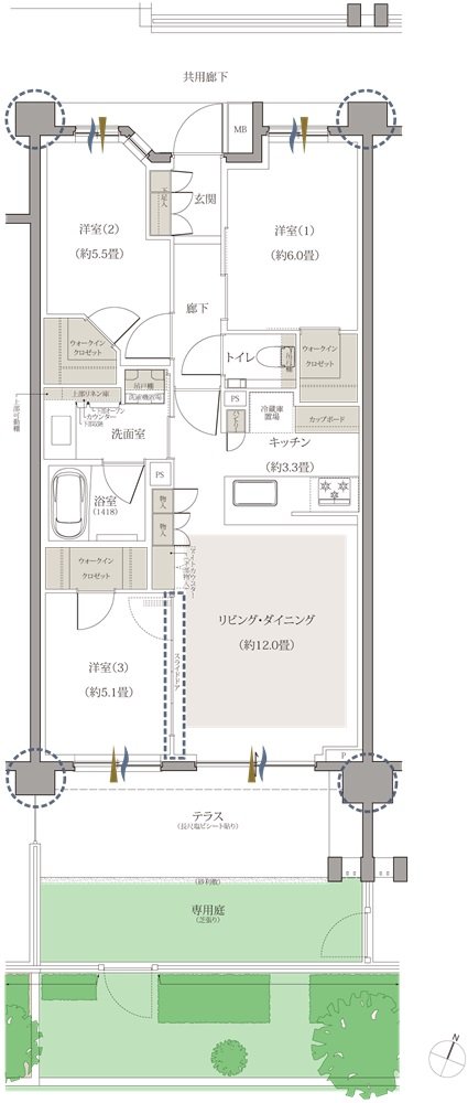
間取り |
3LDK+3WIC |
---|---|---|---|
専有面積 |
72.06 ㎡ |
バルコニー面積 |
- |
所在地 |
東京都世田谷区深沢8丁目70-18(地番) |
||
交通 |
東急田園都市線「桜新町」駅 徒歩9分 |
||
備考 |
テラス面積:12.09㎡ |