
タイプ |
Fタイプ |
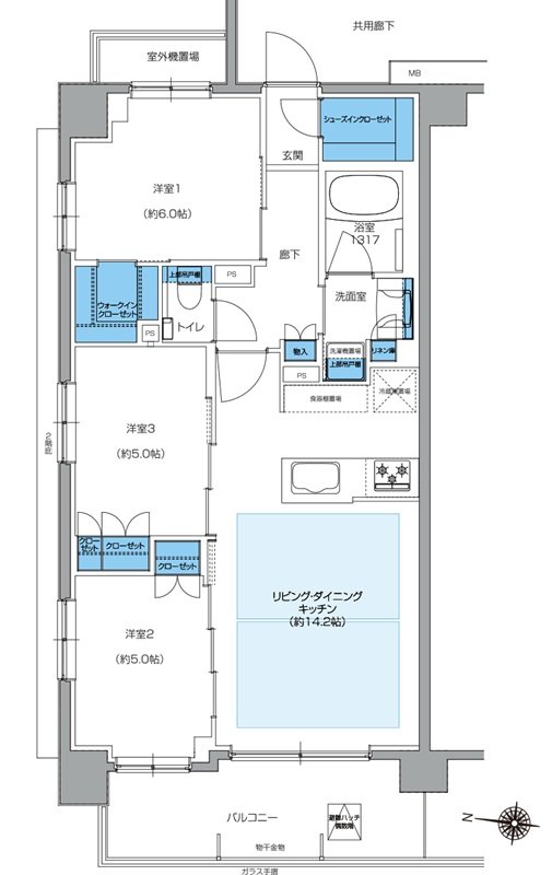
間取り |
3LDK+WIC+SIC |
---|---|---|---|
専有面積 |
68.26 ㎡ |
バルコニー面積 |
9.35 ㎡ |
所在地 |
東京都江戸川区東小岩5丁目2680番1 他(地番) |
||
交通 |
JR総武線「小岩」駅 徒歩6分 |
||
備考 |
室外機置場面積:2.07㎡ |