
タイプ |
L type |
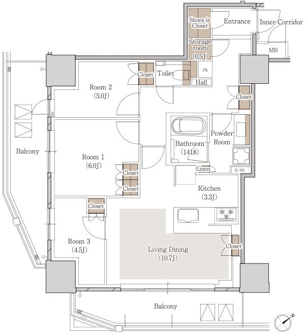
間取り |
3LDK+SIC+N |
---|---|---|---|
専有面積 |
73.89 ㎡ |
バルコニー面積 |
- |
所在地 |
愛知県名古屋市千種区内山2丁目1604番(地番) |
||
交通 |
名古屋市東山線「今池」駅 徒歩3分(3番出入口) |
||
備考 |
バルコニー面積:21.57㎡(7F)、21.11㎡(8~14F) |