

| タイプ |
N type |
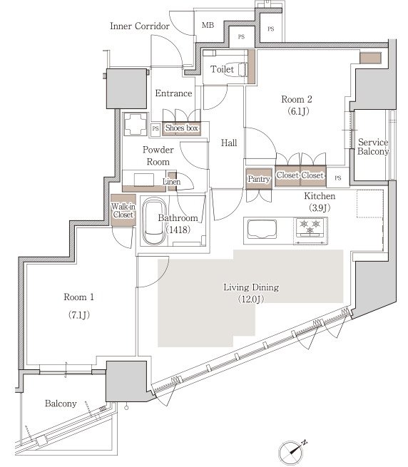
間取り |
2LDK+WIC |
|---|---|---|---|
| 専有面積 |
69.72 ㎡ |
バルコニー面積 |
- |
| 所在地 |
愛知県名古屋市千種区内山2丁目1604番(地番) |
||
| 交通 |
名古屋市東山線「今池」駅 徒歩3分(3番出入口) |
||
| 備考 |
バルコニー面積:17.87㎡(7F)、4.01㎡(8~13F・15~18F) |
||