
タイプ |
D type MENU PLAN 1 |
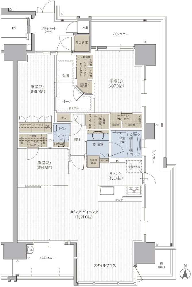
間取り |
3LDK |
---|---|---|---|
専有面積 |
94.2 ㎡ |
バルコニー面積 |
30.85 ㎡ |
所在地 |
島根県松江市東本町1丁目2番1 |
||
交通 |
JR山陰本線「松江」駅 徒歩14分 |
||
備考 |
プライベートホール面積:5.42㎡ |