
タイプ |
A type |
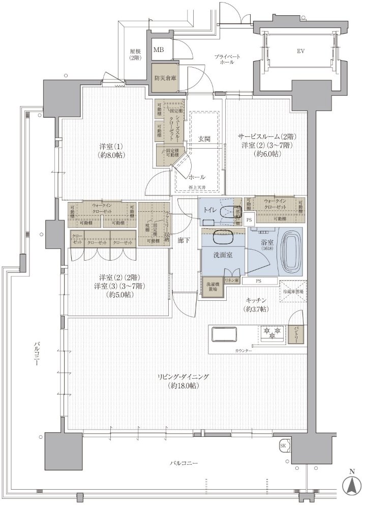
間取り |
3LDK/【2F】2LDK+S |
---|---|---|---|
専有面積 |
94.01 ㎡ |
バルコニー面積 |
36.09 ㎡ |
所在地 |
島根県松江市東本町1丁目2番1 |
||
交通 |
JR山陰本線「松江」駅 徒歩14分 |
||
備考 |
プライベートホール面積:5.77㎡ |