
タイプ |
C type MENU PLAN 2 |
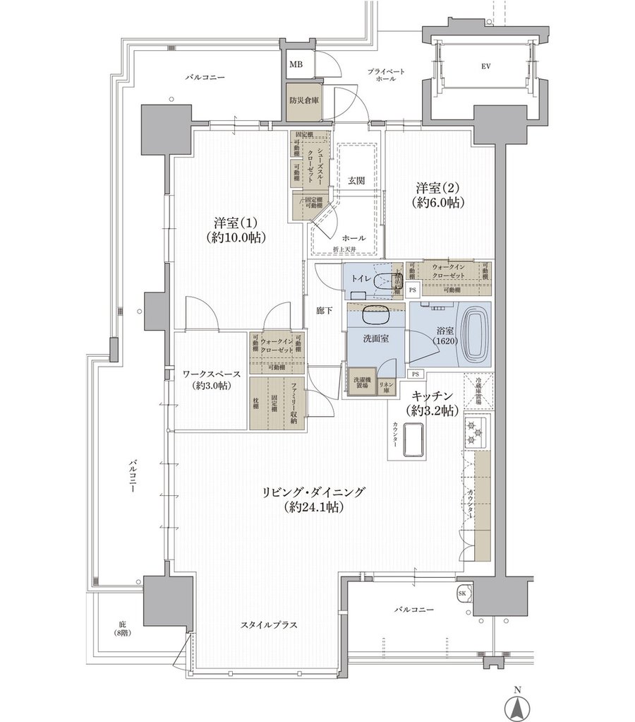
間取り |
2LDK +ワークスペース |
---|---|---|---|
専有面積 |
100.8 ㎡ |
バルコニー面積 |
33.63 ㎡ |
所在地 |
島根県松江市東本町1丁目2番1 |
||
交通 |
JR山陰本線「松江」駅 徒歩14分 |
||
備考 |
住居専有面積:※防災倉庫面積/0.94㎡を含む |