

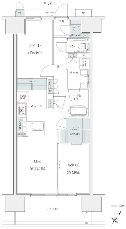
| タイプ |
B TYPE |
間取り |
2LDK+FC+SC+TR |
|---|---|---|---|
| 専有面積 |
62.72 ㎡ |
バルコニー面積 |
10.4 ㎡ |
| 所在地 |
静岡県浜松市浜名区貴布祢175番1 |
||
| 交通 |
遠州鉄道「浜北」駅 徒歩3分 |
||
| 備考 |
※専有面積に、トランクルーム面積0.32㎡含む |
||