アットホーム 新築マンション

印刷する

このウィンドウを閉じる

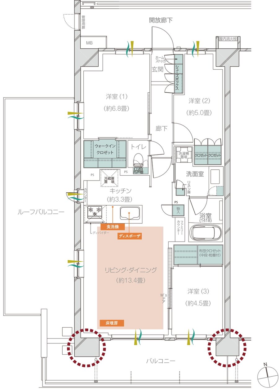
メイツ府中中河原 C2r type

メイツ府中中河原 間取り C2r type
タイプ

C2r type

間取り

3LDK+WIC

専有面積

73.67 ㎡

バルコニー面積

14.37 ㎡

所在地

東京都府中市南町4丁目40番32(地番)他

交通

京王線「中河原」駅 徒歩13分
JR南武線「府中本町」駅 徒歩26分
JR武蔵野線「府中本町」駅 徒歩26分

備考

ルーフバルコニー面積:28.65㎡

  • 可変式間仕切り
  • ウォークインクローゼット
  • 2面バルコニー
  • ルーフバルコニー
  • 南向き

印刷する

このウィンドウを閉じる

アットホーム Copyright(c) At Home Co.,Ltd. このサイトに掲載している情報の無断転載を禁止します。著作権はアットホーム(株)またはその情報提供者に帰属します。