

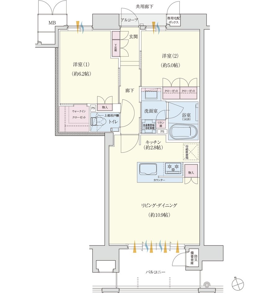
| タイプ |
D type |
間取り |
2LDK+WIC[2階] |
|---|---|---|---|
| 専有面積 |
59.04 ㎡ |
バルコニー面積 |
7.25 ㎡ |
| 所在地 |
鹿児島県鹿児島市荒田1丁目14番7(地番) |
||
| 交通 |
鹿児島市電谷山線「二中通」駅 徒歩3分 |
||
| 備考 |
アルコーブ面積 2.65㎡ |
||