

| タイプ |
EI type |
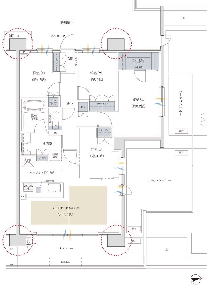
間取り |
4LDK+WIC |
|---|---|---|---|
| 専有面積 |
89.85 ㎡ |
バルコニー面積 |
15.9 ㎡ |
| 所在地 |
兵庫県神戸市垂水区舞子台1丁目19番1(地番) |
||
| 交通 |
JR山陽本線「舞子」駅 徒歩7分 |
||
| 備考 |
アルコーブ面積:5.77㎡ |
||