

| タイプ |
C type |
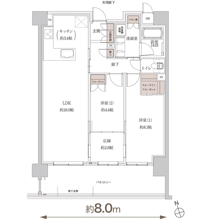
間取り |
2LDK+広縁+WIC |
|---|---|---|---|
| 専有面積 |
73.79 ㎡ |
バルコニー面積 |
16.00 ㎡ |
| 価格 |
5098万円 |
||
| 所在地 |
愛知県豊田市浄水町四丁目37-1,37-2 |
||
| 交通 |
名鉄豊田線「浄水」駅 徒歩9分 |
||
| 備考 |
※専有面積にトランクルームを含む |
||