
タイプ |
C type |
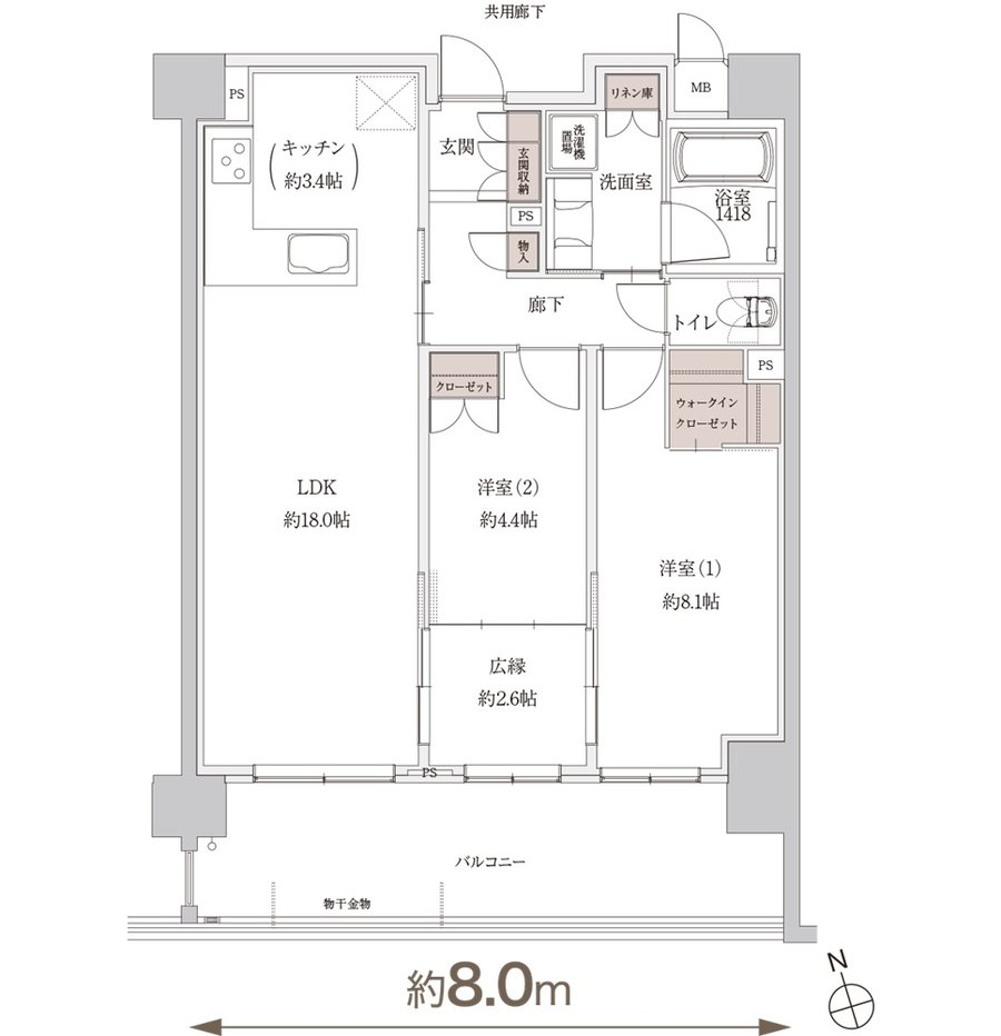
間取り |
2LDK+広縁+WIC |
---|---|---|---|
専有面積 |
73.79 ㎡ |
バルコニー面積 |
16.00 ㎡ |
所在地 |
愛知県豊田市浄水町伊保原592-3、593-1、594-1、600(従前地)、愛知県豊田浄水特定土地区画整理事業128街区1,2(仮換地) |
||
交通 |
名鉄豊田線「浄水」駅 徒歩9分 |
||
備考 |
※専有面積にトランクルームを含む |