

| タイプ |
A3タイプ メニュープラン |
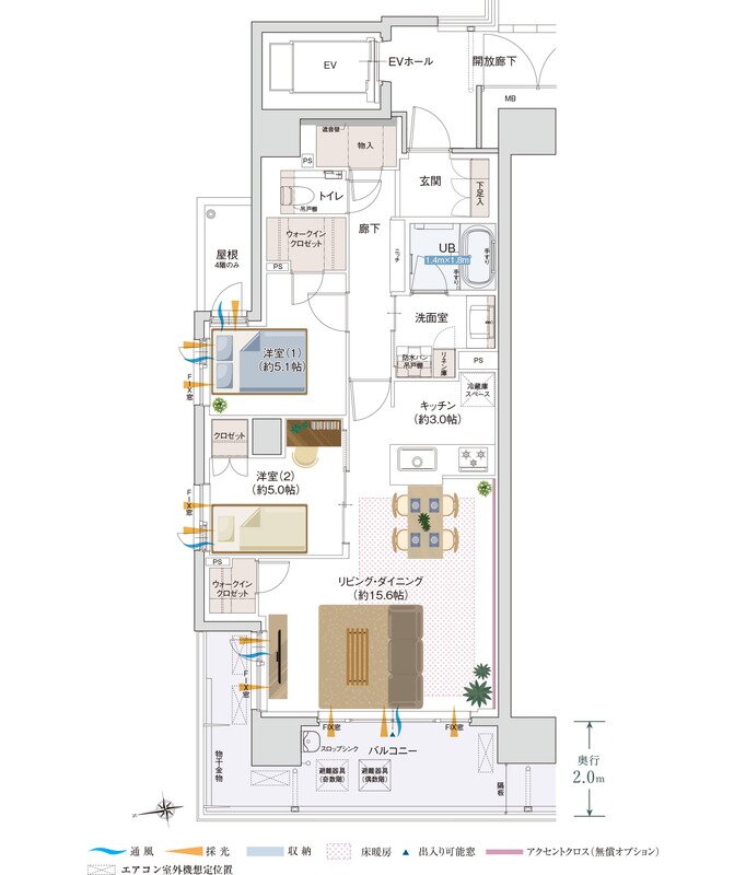
間取り |
2LDK+ウォークインクロゼット×2 |
|---|---|---|---|
| 専有面積 |
72.48 ㎡ |
バルコニー面積 |
15.12 ㎡ |
| 所在地 |
広島県広島市南区稲荷町2-18(地番) |
||
| 交通 |
JR山陽本線「広島」駅 徒歩8分 |
||
| 備考 |
【SUPERIOR FLOOR】 |
||