

| タイプ |
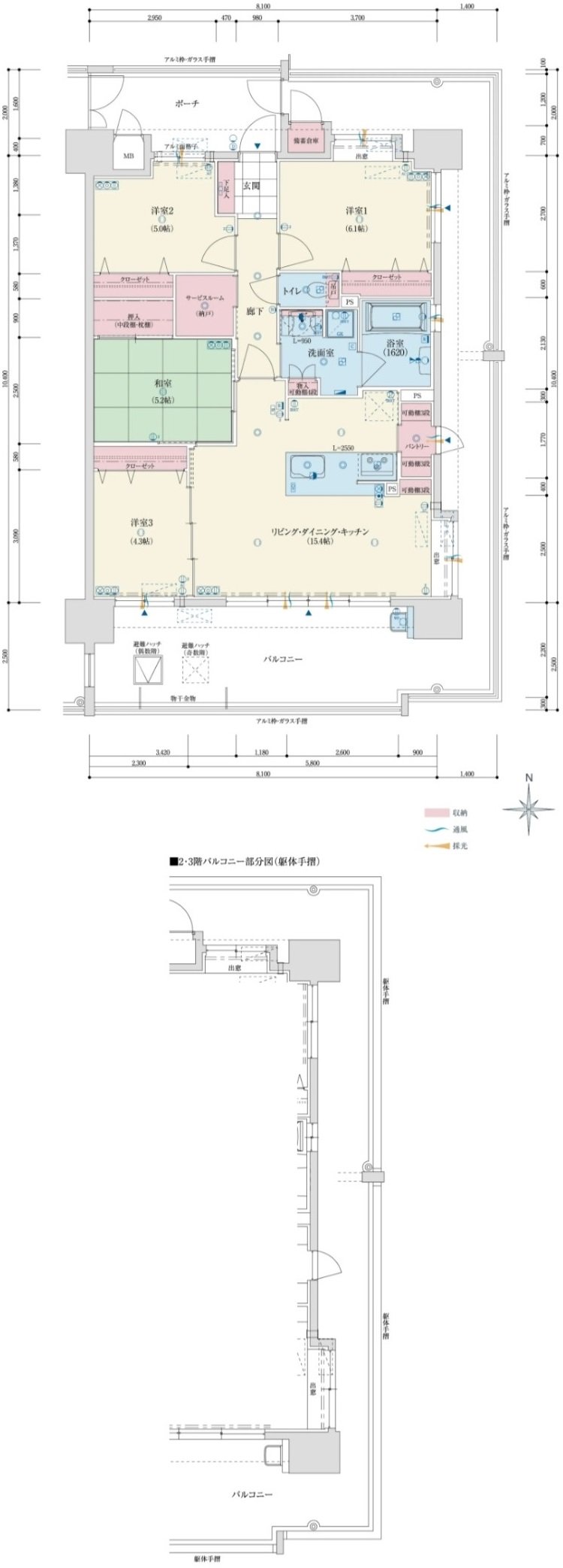
D TYPE |
間取り |
4LDK+S |
|---|---|---|---|
| 専有面積 |
84.4 ㎡ |
バルコニー面積 |
46.37 ㎡ |
| 所在地 |
熊本県人吉市宝来町1280-1、1281-1、1282-1、および 1283-1 の一部 |
||
| 交通 |
バス利用:バス停「薩摩瀬通り」 停歩2分(産交バス) |
||
| 備考 |
ポーチ面積:8.56㎡ |
||