

| タイプ |
A TYPE |
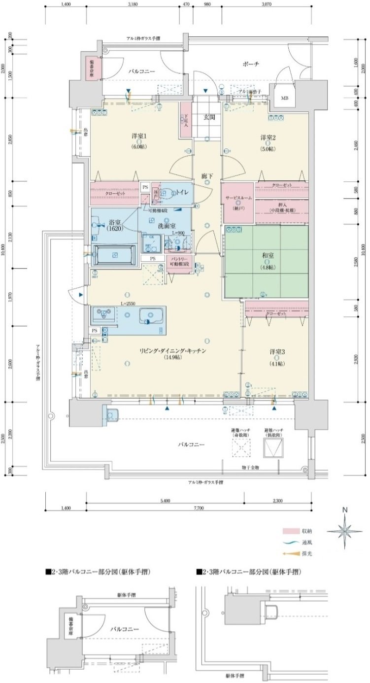
間取り |
4LDK+S |
|---|---|---|---|
| 専有面積 |
80.36 ㎡ |
バルコニー面積 |
35.48 ㎡ |
| 所在地 |
熊本県人吉市宝来町1280-1、1281-1、1282-1、および 1283-1 の一部 |
||
| 交通 |
バス利用:バス停「薩摩瀬通り」 停歩2分(産交バス) |
||
| 備考 |
ポーチ面積:8.06㎡ |
||