

| タイプ |
F type MENU PLAN2 |
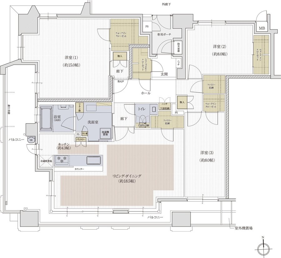
間取り |
3LDK |
|---|---|---|---|
| 専有面積 |
128.83 ㎡ |
バルコニー面積 |
30.87 ㎡ |
| 所在地 |
愛媛県松山市大街道1丁目5番10他 計8筆(地番) |
||
| 交通 |
伊予鉄道環状線「大街道」駅 徒歩6分 |
||
| 備考 |
専用ポーチ面積:4.28㎡ |
||