

| タイプ |
T TYPE |
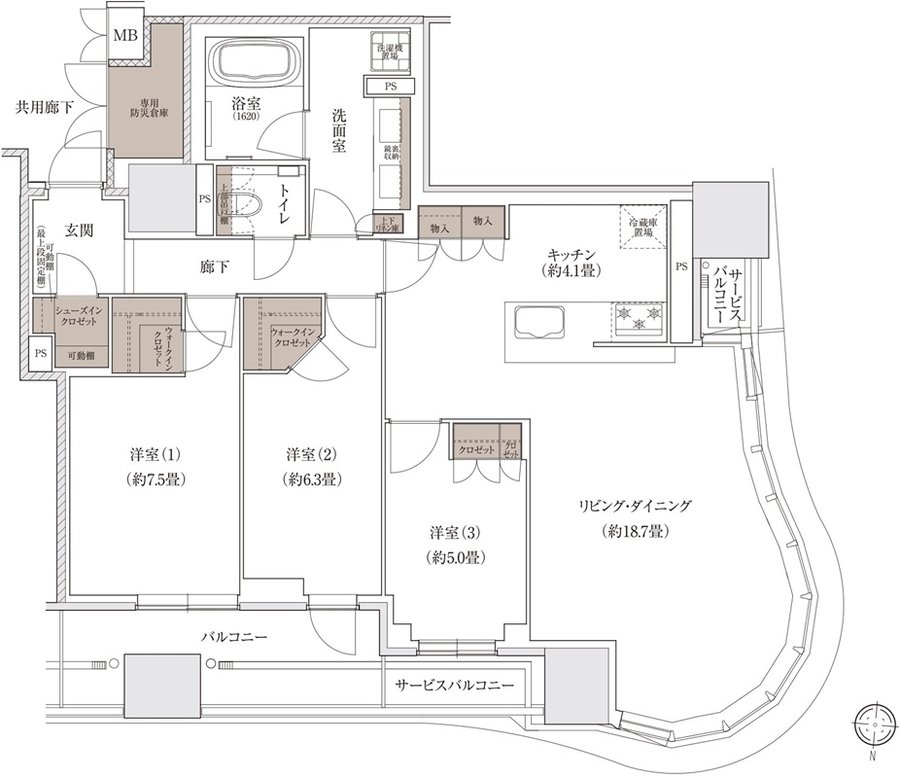
間取り |
3LDK+2WIC+SIC |
|---|---|---|---|
| 専有面積 |
99.91 ㎡ |
バルコニー面積 |
8.92 ㎡ |
| 所在地 |
大阪府大阪市北区中崎1丁目34番1、34番4(地番、計2筆) |
||
| 交通 |
地下鉄谷町線「中崎町」駅 徒歩3分 |
||
| 備考 |
(SUPERIOR FLOOR/26-30F) |
||