

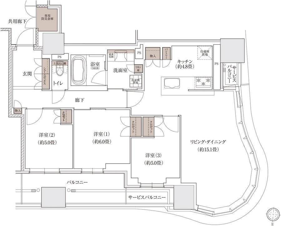
| タイプ |
G TYPE |
間取り |
3LDK |
|---|---|---|---|
| 専有面積 |
87.36 ㎡ |
バルコニー面積 |
9.18 ㎡ |
| 所在地 |
大阪府大阪市北区中崎1丁目34番1、34番4(地番、計2筆) |
||
| 交通 |
地下鉄谷町線「中崎町」駅 徒歩3分 |
||
| 備考 |
(SUPERIOR FLOOR/4-23F) |
||