
タイプ |
F type menu5(2~18階) |
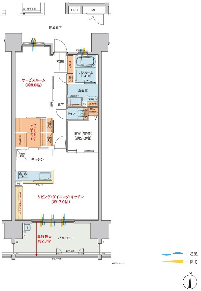
間取り |
1LDK+S+WTC |
---|---|---|---|
専有面積 |
66.79 ㎡ |
バルコニー面積 |
13.34 ㎡ |
所在地 |
岡山県岡山市北区野田2丁目4-102,107(地番) |
||
交通 |
バス利用:バス停「野田東」 停歩6分(両備バス・岡電バス・下電バス) |
||
備考 |
MB面積:0.93㎡ |