

| タイプ |
E type menu3(2~18階) |
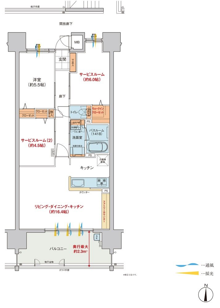
間取り |
1LDK+2S+WIC |
|---|---|---|---|
| 専有面積 |
69.85 ㎡ |
バルコニー面積 |
13.8 ㎡ |
| 所在地 |
岡山県岡山市北区野田2丁目4-102,107(地番) |
||
| 交通 |
バス利用:バス停「野田東」 停歩6分(両備バス・岡電バス・下電バス) |
||
| 備考 |
MB面積:0.73㎡ |
||