
タイプ |
C type menu1(2~18階) |
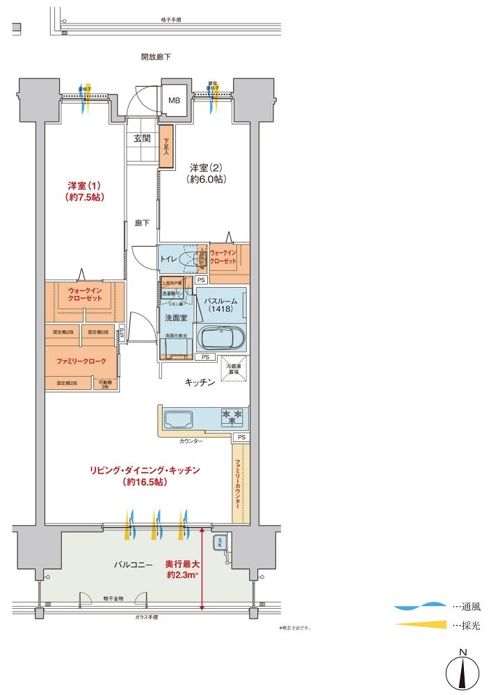
間取り |
2LDK+WIC+FC |
---|---|---|---|
専有面積 |
71.13 ㎡ |
バルコニー面積 |
13.8 ㎡ |
所在地 |
岡山県岡山市北区野田2丁目4-102,107(地番) |
||
交通 |
バス利用:バス停「野田東」 停歩6分(両備バス・岡電バス・下電バス) |
||
備考 |
MB面積:0.73㎡ |