

| タイプ |
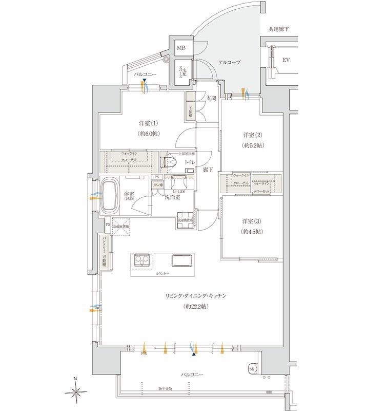
Aタイプ 3LDKプラン |
間取り |
3LDK+3WIC |
|---|---|---|---|
| 専有面積 |
82.9 ㎡ |
バルコニー面積 |
15.25 ㎡ |
| 所在地 |
大分県大分市希望が丘1丁目1045番18(地番)別途、1045番19(位置指定道路)、1055番43(駐車場) |
||
| 交通 |
JR日豊本線「牧」駅 徒歩8分 |
||
| 備考 |
アルコーブ面積:9.10㎡ |
||