
タイプ |
A5タイプ |
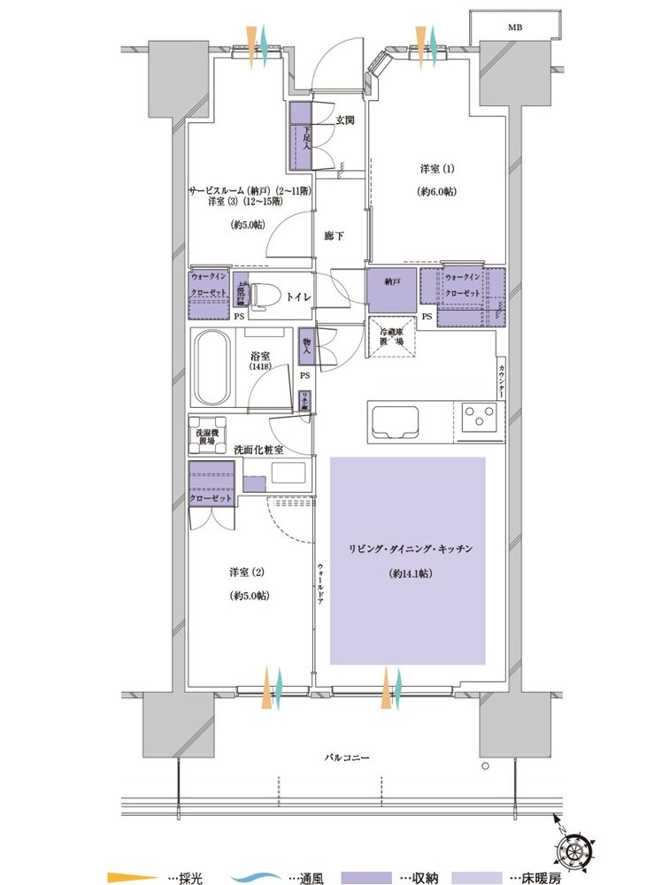
間取り |
2LDK+S+N+2WIC |
---|---|---|---|
専有面積 |
65.58 ㎡ |
バルコニー面積 |
11.8 ㎡ |
所在地 |
埼玉県蓮田市東5丁目3875番1 他(地番) |
||
交通 |
JR東北本線「蓮田」駅 徒歩1分 |
||
備考 |
2LDK+S+N+2WIC(2~11F) |