

| タイプ |
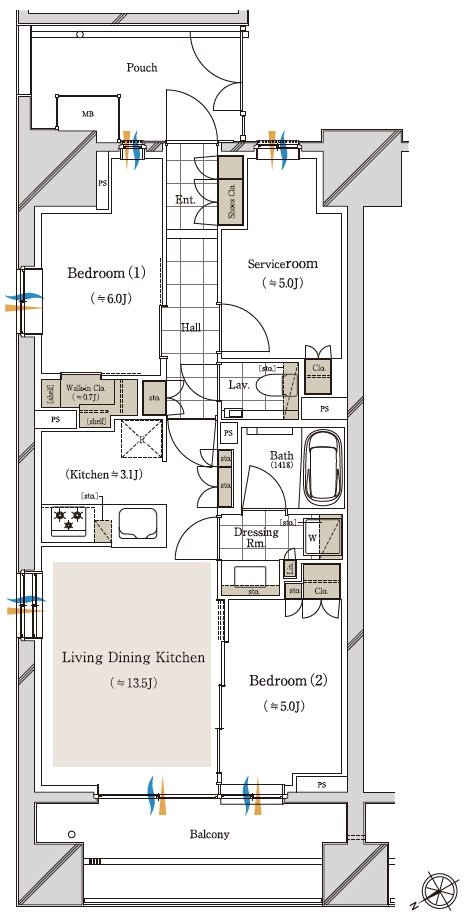
F-65A type |
間取り |
2LDK+S+WIC |
|---|---|---|---|
| 専有面積 |
65.48 ㎡ |
バルコニー面積 |
10.3 ㎡ |
| 所在地 |
東京都小金井市梶野町5丁目1143番地3他(地番) |
||
| 交通 |
JR中央線「東小金井」駅 徒歩1分 |
||
| 備考 |
ポーチ面積:7.6㎡ |
||