アットホーム 新築マンション

印刷する

このウィンドウを閉じる

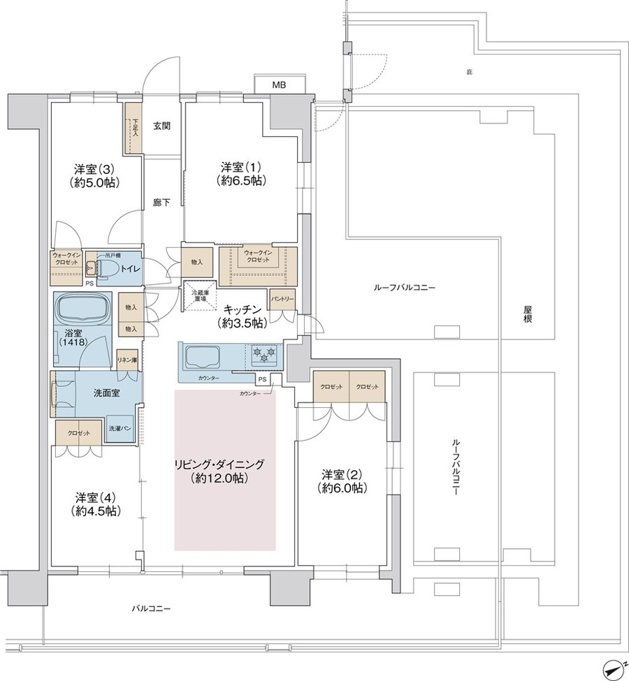
ジェイグラン羽衣 Ur type

ジェイグラン羽衣 間取り Ur type
タイプ

Ur type

間取り

4LDK+2WIC

専有面積

82.28 ㎡

バルコニー面積

19.64 ㎡

所在地

大阪府高石市羽衣2丁目456番2(地番)

交通

南海本線「羽衣」駅 徒歩7分
JR阪和線「東羽衣」駅 徒歩7分
阪堺電気軌道阪堺線「浜寺駅前」駅 徒歩6分

備考

ルーフバルコニー面積:29.73㎡

  • ウォークインクローゼット
  • ルーフバルコニー
  • 東向き

印刷する

このウィンドウを閉じる

アットホーム Copyright(c) At Home Co.,Ltd. このサイトに掲載している情報の無断転載を禁止します。著作権はアットホーム(株)またはその情報提供者に帰属します。