

| タイプ |
EEr type |
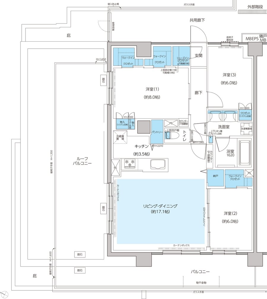
間取り |
3LDK+N+3WIC+SIC |
|---|---|---|---|
| 専有面積 |
93.38 ㎡ |
バルコニー面積 |
19.08 ㎡ |
| 所在地 |
埼玉県和光市白子2丁目1364番1の一部、1365番、1366番4、1370番1、1370番2、1371番1、1371番2、1373番6、1373番7、1421番1の一部、1422番1の一部(地番)※引渡しまでに合・分筆予定です。 |
||
| 交通 |
東京メトロ有楽町線「地下鉄成増」駅 徒歩10分 |
||
| 備考 |
ルーフバルコニー面積:33.33㎡ |
||