

| タイプ |
M type |
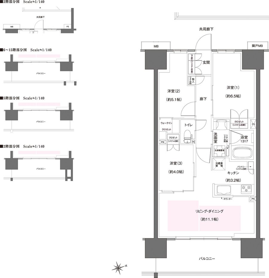
間取り |
3LDK+WIC |
|---|---|---|---|
| 専有面積 |
65.15 ㎡ |
バルコニー面積 |
- |
| 所在地 |
大阪府大阪市此花区西九条5丁目31-1(地番) |
||
| 交通 |
阪神なんば線「西九条」駅 徒歩6分((1)出入口) |
||
| 備考 |
バルコニー面積:11.10㎡(2階)、11.90㎡(3~15階) |
||