
タイプ |
J type |
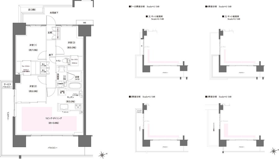
間取り |
3LDK+WIC+WTC |
---|---|---|---|
専有面積 |
76.65 ㎡ |
バルコニー面積 |
- |
所在地 |
大阪府大阪市此花区西九条5丁目31-1(地番) |
||
交通 |
阪神なんば線「西九条」駅 徒歩6分((1)出入口) |
||
備考 |
バルコニー面積:12.80㎡(2階)、22.70㎡(3~5階)、18.94㎡(6~15階) |