アットホーム 新築マンション

印刷する

このウィンドウを閉じる

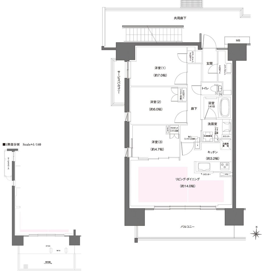
ザ・グランドグレイス 大阪西九条 Ag type

ザ・グランドグレイス 大阪西九条 間取り Ag type
タイプ

Ag type

間取り

3LDK+WIC+SIC

専有面積

79.21 ㎡

バルコニー面積

-

所在地

大阪府大阪市此花区西九条5丁目31-1(地番)

交通

阪神なんば線「西九条」駅 徒歩6分((1)出入口)
JR大阪環状線「西九条」駅 徒歩7分

備考

サービススペース面積:3.00㎡
テラス面積:13.20㎡
専用庭面積:13.20㎡

  • 玄関からリビングが見えない間取り
  • 可変式間仕切り
  • ウォークインクローゼット
  • シューズインクローゼット
  • テラス
  • 専用庭
  • 南向き
  • フラットフロア

印刷する

このウィンドウを閉じる

アットホーム Copyright(c) At Home Co.,Ltd. このサイトに掲載している情報の無断転載を禁止します。著作権はアットホーム(株)またはその情報提供者に帰属します。