

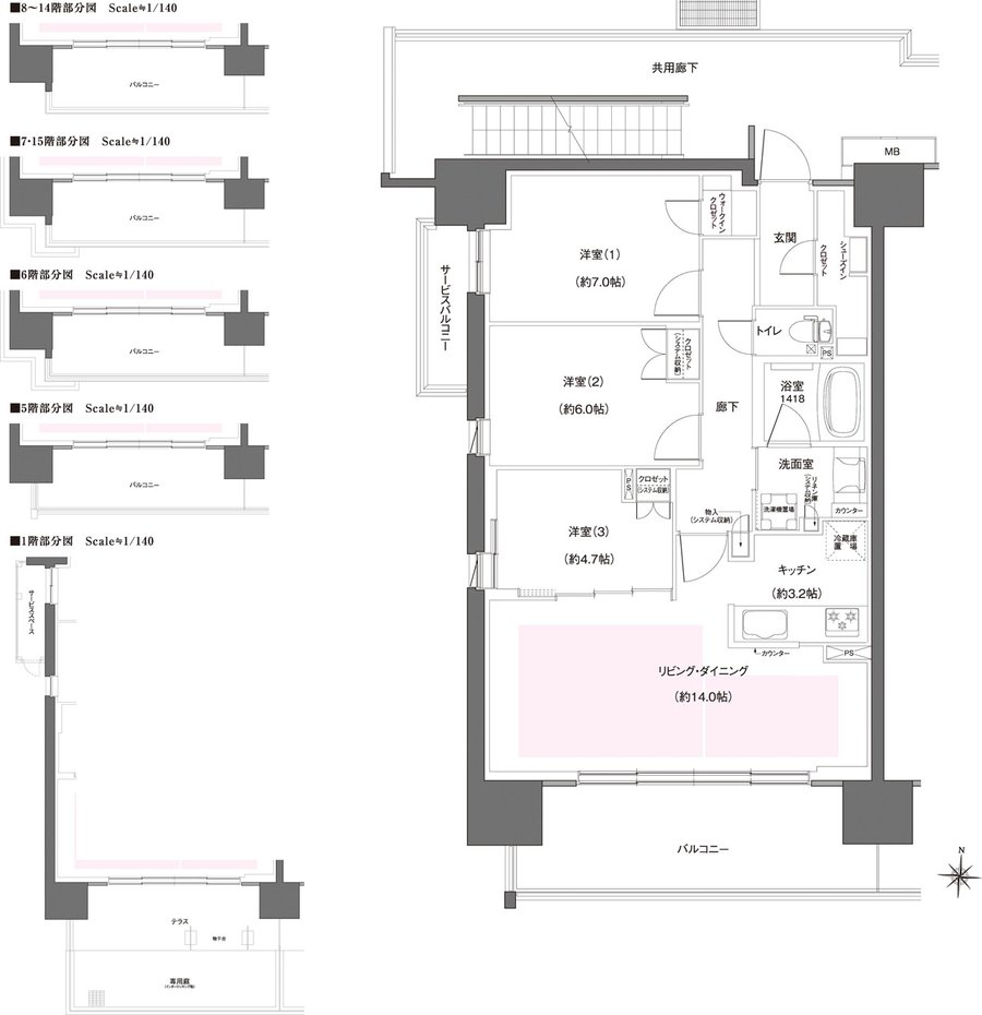
| タイプ |
Ag type |
間取り |
3LDK+WIC+SIC |
|---|---|---|---|
| 専有面積 |
79.21 ㎡ |
バルコニー面積 |
- |
| 所在地 |
大阪府大阪市此花区西九条5丁目31-1(地番) |
||
| 交通 |
阪神なんば線「西九条」駅 徒歩6分((1)出入口) |
||
| 備考 |
バルコニー面積:13.20㎡(2~5階)、12.32㎡(6~15階) |
||