
タイプ |
A type |
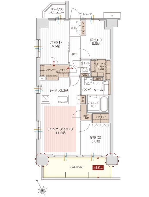
間取り |
3LDK+WIC+FC+N |
---|---|---|---|
専有面積 |
74.93 ㎡ |
バルコニー面積 |
11.38 ㎡ |
所在地 |
千葉県市川市鬼高3丁目1204番1(地番) |
||
交通 |
JR総武線「下総中山」駅 徒歩11分 |
||
備考 |
サービスバルコニー面積/2.36㎡ |