

| タイプ |
A-Vr type |
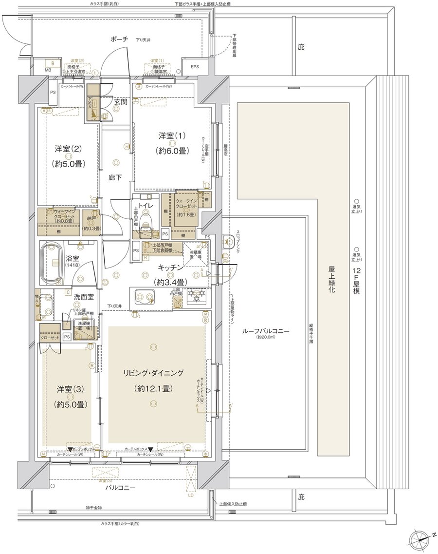
間取り |
3LDK+2WIC+N |
|---|---|---|---|
| 専有面積 |
70.44 ㎡ |
バルコニー面積 |
9.5 ㎡ |
| 所在地 |
東京都江東区南砂3丁目11-118他(地名地番) |
||
| 交通 |
東京メトロ東西線「南砂町」駅 徒歩1分 |
||
| 備考 |
ルーフバルコニー面積:20.0㎡ |
||