アットホーム 新築マンション

印刷する

このウィンドウを閉じる

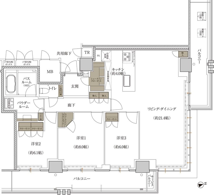
プレミストタワー千里丘 T-H TYPE

プレミストタワー千里丘 間取り T-H TYPE
タイプ

T-H TYPE

間取り

3LDK+SIC+WIC+TR

専有面積

104.68 ㎡

バルコニー面積

26.50 ㎡

所在地

大阪府摂津市千里丘1丁目703番(地番)

交通

JR東海道本線「千里丘」駅 徒歩2分

備考

※専有面積に、戸別宅配ボックス面積1.34㎡を含む、トランクルーム面積0.90㎡を含む
サービスバルコニー面積:1.07㎡

  • 玄関からリビングが見えない間取り
  • 広いリビング
  • ウォークインクローゼット
  • シューズインクローゼット
  • 2面バルコニー
  • トランクルーム
  • 北向き

印刷する

このウィンドウを閉じる

アットホーム Copyright(c) At Home Co.,Ltd. このサイトに掲載している情報の無断転載を禁止します。著作権はアットホーム(株)またはその情報提供者に帰属します。