

| タイプ |
S-F TYPE |
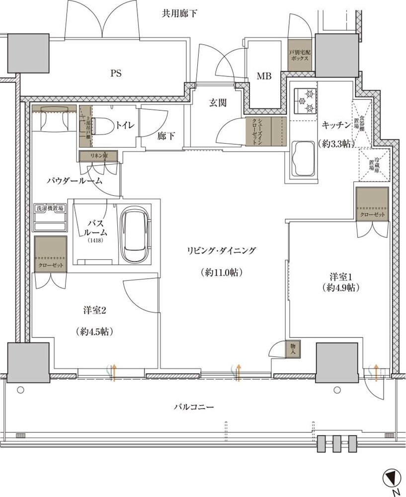
間取り |
2LDK+SIC |
|---|---|---|---|
| 専有面積 |
56.15 ㎡ |
バルコニー面積 |
13.78 ㎡ |
| 所在地 |
大阪府摂津市千里丘1丁目703番(地番) |
||
| 交通 |
JR東海道本線「千里丘」駅 徒歩2分 |
||
| 備考 |
※専有面積に、戸別宅配ボックス面積1.38㎡を含む |
||