

| タイプ |
P-B TYPE |
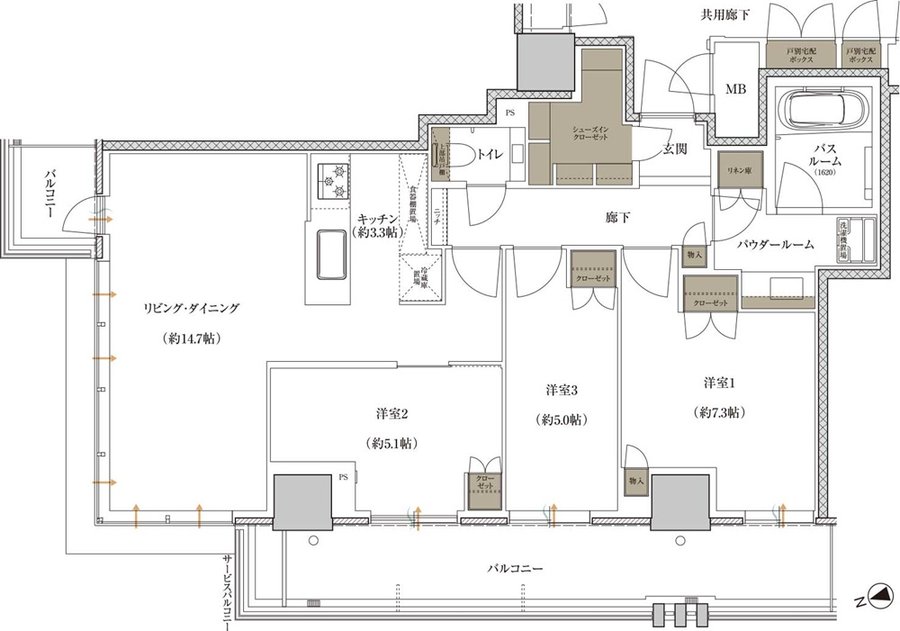
間取り |
3LDK+SIC |
|---|---|---|---|
| 専有面積 |
84.05 ㎡ |
バルコニー面積 |
16.53 ㎡ |
| 所在地 |
大阪府摂津市千里丘1丁目703番(地番) |
||
| 交通 |
JR東海道本線「千里丘」駅 徒歩2分 |
||
| 備考 |
※専有面積に、戸別宅配ボックス面積1.04㎡を含む |
||