
タイプ |
T-D TYPE |
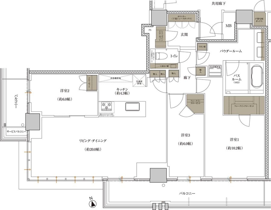
間取り |
3LDK+SIC+2WIC |
---|---|---|---|
専有面積 |
107.17 ㎡ |
バルコニー面積 |
18.47 ㎡ |
所在地 |
大阪府摂津市千里丘1丁目703番(地番) |
||
交通 |
JR東海道本線「千里丘」駅 徒歩2分 |
||
備考 |
※専有面積に、戸別宅配ボックス面積1.56㎡を含む |