

| タイプ |
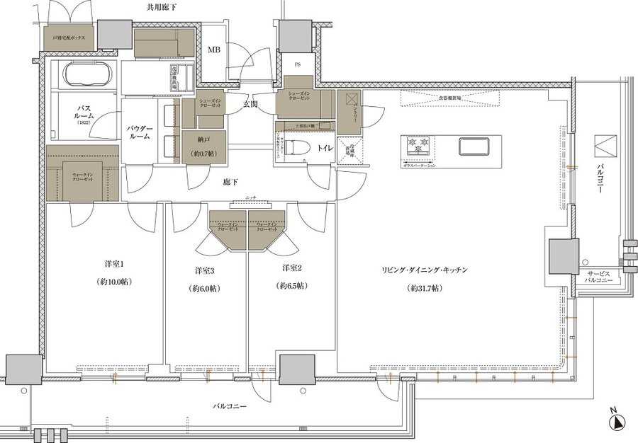
T-F TYPE |
間取り |
3LDK+N+2SIC+3WIC |
|---|---|---|---|
| 専有面積 |
126.57 ㎡ |
バルコニー面積 |
23.76 ㎡ |
| 所在地 |
大阪府摂津市千里丘1丁目703番(地番) |
||
| 交通 |
JR東海道本線「千里丘」駅 徒歩2分 |
||
| 備考 |
※専有面積に、戸別宅配ボックス面積1.60㎡を含む |
||