

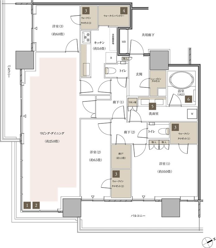
| タイプ |
P-SE129Oタイプ |
間取り |
3LDK+3WIC+SIC+WIP+N |
|---|---|---|---|
| 専有面積 |
129.69 ㎡ |
バルコニー面積 |
29.07 ㎡ |
| 所在地 |
千葉県市川市市川南2丁目89番1他(地番) |
||
| 交通 |
JR総武本線「市川」駅 徒歩7分 |
||
| 備考 |
【1】二面採光の南西角住戸 |
||